DOM na SPRZEDAŻ
Szczecin, Pomorzany
169 000 zł | 70 m2 | pokoi: 2nr oferty: 422598
Zapraszam do zapoznania się z ofertą na domek całoroczny o powierzchni całkowitej ok. 65m2. To idealne miejsce dla osób pragnących odpocząć w pięknym otoczeniu przyrody. Lokalizacja: Przystań Pomorzany ul. Bydgoska. Stan: surowy otwarty - Do własnej aranżacji, poddasze użytkowe, - Wszystkie przyłącza doprowadzone, - Zamknięty, monitorowany teren. Na przystani dostępne są również świetlica plac zabaw wiata z grillem ogrodowym, pomosty, slip oraz wile miejsc przeznaczonych do wędkowania. Możliwość dokupienia garażu dodatkowo w kwocie 49 000 zł. Obszar monitorowany całą dobę. Zapraszam do kontaktu !
Szczecin, Skolwin
1 420 000 zł | 186 m2 | pokoi: 4nr oferty: 422520
Do sprzedaży dom położony na spokojnym osiedlu domów jednorodzinnych, w okolicy ulicy Kamiennej. Na powierzchnię domu składają się: PARTER: * salon * kuchnia * korytarz * wc * zaplecze gospodarcze * garaż 1 PIĘTRO: * 3 pokoje * garderoba * łazienka * pralnia * balkon STRYCH Dom wybudowany z dbałością o każdy szczegół. Na podłogach na parterze deska barlinecka i terakota, na podłogach na piętrze panele, ściany gładzone i malowane. Łazienka i wc w glazurze i terakocie Dom posiada dwa źródła ciepła: piec gazowy oraz kominek z płaszczem wodnym Woda ogrzewana z pieca gazowego. Teren wokół domu ogrodzony i zagospodarowany. Na posesji znajduje się mały plac zabaw dla dzieci, wiata oraz drewutnia Zapraszam na prezentacje Powyższy opis ma charakter informacyjny i nie stanowi oferty w rozumieniu przepisów Kodeksu Cywilnego oraz innych właściwych przepisów prawnych. Informacje umieszczone w ofertach przekazywane są przez właścicieli nieruchomości i mogą ulegać zmianom.
Lulewice,
299 900 zł | 3800 m2 | pokoi: 5nr oferty: 422673
Oferujemy do sprzedaży zabudowaną nieruchomość gruntową o powierzchni 0,3800 ha, położoną w Lulewicach, gmina Białogard. W skład nieruchomości wchodzą: budynek mieszkalny oraz dwa budynki niemieszkalne. Budynek mieszkalny o powierzchni zabudowy 94 m2 jest w zabudowie bliźniaczej (dokładnie to jest połowa domu - jedna część bliźniaka), w stanie surowym - nowe mury oraz dach i poszycie z blacho-dachówki. Budynek składa się z parteru oraz piętra - użytkowego poddasza. Do wykończenia i własnej aranżacji. Budynek gospodarczy o powierzchni zabudowy 311 m2 wykonany jest z białej cegły, pokryty dachówką. Składa się z parteru oraz piętra z wysokim dwuspadowym dachem. Parter składający się z kilku pomieszczeń - socjalnych, magazynowych, warsztatowych z kanałem, można dostosować do własnych potrzeb. Piętro, to bardzo wysoki strych, który służył do przechowywania płodów rolnych. W większości pomieszczenia posiadają tynki i posadzki, z instalacją sanitarną i instalacją elektryczną. Pomieszczenia do własnej aranżacji. Drugi budynek niemieszkalny o powierzchni 55 m2, pełnił funkcję stodoły. Cała nieruchomość, która składa się z dwóch działek gruntu ma duży potencjał. Może być wykorzystana także na cele komercyjne. Budynki idealnie nadają się na biura, warsztaty, magazyn, produkcję. Istnieje możliwość sporządzenia indywidualnego projektu aranżacji wnętrz. Do nieruchomości doprowadzona jest kanalizacja sanitarna, woda, własna studia. Wymagane jest doprowadzenie energii elektrycznej. Zaletą jest lokalizacja oraz bezpośredni dostęp do drogi asfaltowej. Natura i cisza a także, co jest bardzo istotne, sąsiedzi i ich życzliwość. Polecamy i zapraszamy na prezentację.
Mierzyn,
770 000 zł | 78 m2 | pokoi: 4nr oferty: 422316
Dom w cenie mieszkania - 4 pokoje + ogród oraz dwoma miejscami postojowymi w cenie ! Bezczynszowy ! Inwestycja zakończona ! Mierzyn ul. Długa Wynagrodzenie Pośrednika pokrywa Sprzedający! Oferta dotyczy domu nr 3b o powierzchni 77,75m2. składającego się z: PARTER: - salon z aneksem kuchennym - 39,65m2 - łazienka - 1,68 m2 PIĘTRO: - pokój - 7,77 m2 - pokój - 9,80 m2 - pokój - 9,80 m2 - łazienka - 6,35 m2 - korytarz - 2,70 m2 Działka ma powierzchnię ok 102 m2 w tym ogród ok 52m2. W cenie są również przynależne dwa miejsca postojowe. Sprzedawane w stanie deweloperskim bez podatku PCC - 2% PRZEDSTAWIENIE INWESTYCJI: Prezentujemy niezwykłe kameralne osiedle, składające się trzech dwu-lokalowych domów, oraz jednego domu jednorodzinnego w Mierzynie przy ul. Długiej. Nieruchomość została wykończona z użyciem wysokiej jakości materiałów, co gwarantuje trwałość i estetykę. Projekt powstał z myślą o zapewnieniu przyszłym Nabywcom najlepszego komfortu życia. Układ pomieszczeń jest zaprojektowany nowocześnie i funkcjonalnie. ATUTY: - Bardzo cicha i spokojna okolica z dala od zgiełku miejskiego - Doskonały dojazd do centrum Szczecina - Własny ogródek - Dwa miejsca postojowe - Dobrze doświetlone pomieszczenia dzięki dużym oknom - Kameralne osiedle LOKALIZACJA: Mierzyn jest jedną z najbardziej atrakcyjnych lokalizacji graniczącą ze Szczecinem. W pobliżu znajdują się szkoły, przedszkola, placówki zdrowotne oraz liczne sklepy (Lidl, Biedronka, Netto). W najbliższym otoczeniu inwestycji znajduje się rozwinięta infrastruktura komunikacyjna w tym bliskość dróg głównych oraz dobrze skomunikowany transport publiczny. Dobra infrastruktura oraz dostępność lokalnych sklepów sprawiają, że jest to doskonałe miejsce do zamieszkania dla rodzin i singli. Serdecznie zapraszam do kontaktu. Chętnie udzielę odpowiedzi na Państwa pytania na temat naszej oferty oraz finansowania zakupu apartamentu. Pomagamy również w uzyskaniu kredytu na zakup nieruchomości. ZADZWOŃ JUŻ TERAZ I ZAPYTAJ O SZCZEGÓŁY ! Mapka nie odzwierciedla faktycznej lokalizacji. Treść niniejszego ogłoszenia nie stanowi oferty handlowej w rozumieniu Kodeksu Cywilnego. Treść ma charakter informacyjny i zalecamy ich osobistą weryfikację. Kontaktując się z biurem Klient wyraża zgodę na przetwarzanie danych osobowych zgodnie z przepisami ustawy z dnia 29 sierpnia 1997 roku o ochronie danych osobowych / Dz.U.Nr. 133 poz. 883/. Klientowi przysługuje prawo do wglądu do swoich danych osobowych i ich aktualizacji.
Stargard,
1 850 000 zł | 343 m2 | pokoi: 6nr oferty: 422252
Planujesz skredytować to marzenie - zadzwoń. Komfortowy i nowoczesny dom wolnostojący posadowiony ładnie zagospodarowanej i ogrodzonej działce położony w Stargardzie. Znakomita lokalizacja; willowa dzielnica i spokojna uliczka z dobrym dojazdem do centrum Stargardu i na trasę S10, w pobliżu szkoła, przedszkole, sklepy, ośrodek sportowy, przychodnia lekarska, komunikacja miejska, tereny rekreacyjne itp. Pomieszczenia zaaranżowane z ogromną pieczołowitością i dbałością o każdy szczegóły przy wykorzystaniu wysokiej jakości materiałów. Dom jest komfortowy i modny. Perfekcyjne wykończenie doskonale komponuje z funkcjonalnością. W skład nieruchomości wchodzą: parter: - salon z kominkiem i jadalnią - otwarta kuchnia - gabinet - łazienka z prysznicem - wiatrołap z szafą w zabudowie - holl - pralnia - korytarz - garaż na dwa auta ze spiżarnią i kotłownią piętro - sypialnia z wyjściem na balkon - 3 pokoje - łazienka z wanną - korytarz dodatkowo poddasze wykończone OSB. Dom był budowany "dla siebie" z wysokiej jakości materiałów z wykorzystaniem rozwiązań mających na celu wygodę użytkowania. Budynek wyposażony jest w ogrzewanie podłogowe, kominek, zmiękczacz wody, centralny odkurzacz, wideofon, monitoring, okna PCV w okleinie, brama na pilota. Budynek ocieplony styropianem grafitowym grubości 20 cm, dach wyłożony dachówką ceramiczną. Zadbany ogród z otwartym tarasem wyłożonym płytami dekoracyjnymi, trawa z rolki, nawadnianie. Ogrodzenie panelowe, podjazd wyłożony kostką, liczne nasadzenia, opaski z kamieni. Dom można nabyć z kompletnym wyposażeniem tworzącym niepowtarzalną całość. Wydanie do uzgodnienia. Zapraszam do obejrzenia na żywo.
DOM na WYNAJEM
Wrzosowo,
50 zł | 200 m2 | pokoi: 8nr oferty: 422311
Oferujemy Państwu na wynajem bardzo ładny dom zlokalizowany w miejscowości Wrzosowo - 2 km od morza. Na powierzchnię ok. 200m2 składa się 8 dwuosobowych pokoi, kuchnia z jadalnią oraz przedpokój. W każdym z pokoi znajduje się łazienka wyposażona w kabinę prysznicową, umywalkę i toaletę. Ogrzewanie i ciepła woda z pieca gazowego dwuobiegowego. Cena: 50zł za osobę/doba. Do czynszu najmu należy doliczyć opłaty za zużyte media. Teren ogrodzony - możliwe parkowanie na terenie posesji. Przy wynajmie całego domu istnieje możliwość negocjacji cenowych. Polecamy i zapraszamy na prezentację.
Steklno,
450 000 zł | 110 m2 | pokoi: 4nr oferty: 422139
Zapraszam do zapoznania się z ofertą dwóch domów całorocznych położonych w odległości 300 m od jeziora Steklno. Na działce o powierzchni 576 m2 zostały usytuowane dwa domy całoroczne, nie związane na stałe z gruntem o powierzchniach około 45 m2 każdy. Do lokali podłączone media: woda, kanalizacja, prąd. Działka podzielona w taki sposób aby można było korzystać z domów oddzielnie, bez zakłócania spokoju. Dwa osobne wjazdy, każdy budynek ma swój. Domek nr 1: Typ budynku - brda. Salon, kuchnia i łazienka w lekkim obniżeniu, poddasze. Ogrzewanie elektryczne. Duży taras. Domek nr 2: Salon z aneksem kuchennym, łazienka, poddasze. Duży taras. Podłączona klimatyzacja. Polecam z uwagi na bliskość jeziora i piękną okolicę. Do głównej plaży około 300 m.
Redliny,
648 000 zł | 70 m2 | pokoi: 3nr oferty: 422199
Mała letniskowa posiadłość z możliwością mieszkania całorocznego na działce o pow. 5000 m 2, zlokalizowanej na spokojnej cichej wsi ok. 7 km od Pobierowa ( morza) . W skład nieruchomości wchodzą : Domek mieszkalny o całkowitej powierzchni 70 m 2,+ 2 kontenery gospodarcze, namiot / warzywniak. Teren działki w całości ogrodzony. Dom: pow. całkowita 70 m 2 ( 35 m 2 parter + 35 m 2 poddasze) . W części dolnej salon z aneksem kuchennym , łazienka z w c . Z salonu wyjścia na zadaszone tarasy po obu stronach domu ( wschód- zachód) . Poddasze to : łazienka oraz 1 lub 2 pokoje w zależności od aranżacji i potrzeb. Cena zawiera stan aktualny nieruchomości: budynek jest ocieplony, wewnątrz instalacje wod-kan i podłączenia do zasilania i szamba, podłączone ogrzewanie z osobnej kotłowni, tynki na parterze, dach pokryty dachówką ceramiczną dobrej jakości. Działka / zagospodarowana / : częściowo przygotowana pod uprawy ( warzywa , owoce, itp. ) , namiot foliowy / "szklarnia", 2 pomieszczenia gospodarcze z sanitariatami ( kontenery) , kotłownia / pomieszczenie gospodarcze. Okolica - położenie malowniczo i zacisznie pośród lasów , łąk i pól . Cisza i spokój. W sąsiedztwie rzadka zabudowa jednorodzinna , letniskowa i wiejska. Odległość do Pobierowa 7 km. oraz niewiele dalej do nadmorskich miejscowości jak : Rewal, Niechorze , Pogorzelica, Dziwnów , Dziwnówek, Łukęcin. Dojazd bezpośrednio do posesji żwirowy, ale po 100 m już droga asfaltowa , biegnąca przez stary las . Lokalizacja bardzo ciekawa. Oferta dla koneserów i miłośników posiadłości z dala od zgiełku a jednocześnie blisko morza / 8 min. samochodem do plaży w Pobierowie /. Nieruchomość do wydania od zaraz.
Dobra,
960 000 zł | 142 m2 | pokoi: 4nr oferty: 421649
TYLKO U NAS! Prezentujemy Państwu nowo powstającą inwestycję domu jednorodzinnego dwulokalowego w Dobrej. Zakończenie prac planowane jest na IV kwartał 2024. Projekt domu indywidualny. Dom o powierzchni całkowitej 142m2, a użytkowej 122,1m2 składający się z: Na parterze: - salon 28,3 m2, - aneks kuchenny 6,7 m2, - łazienka 4,0 m2, - wiatrołap 4,0 m2, - garaż jednostanowiskowy 17,3 m2, - pomieszczenie techniczne 2,7 m2, Piętro: - sypialnia 15m2: 12,2 m2 sypialnia, łazienka 2,8 m2, - pokój 13,9 m2, - pokój 14,9 m2, - komunikacja z korytarzem 8,6 m2, - łazienka 5,7 m2, - pomieszczenie gospodarcze 1,0 m2. Parametry techniczne domu: Dom oddzielony od sąsiada podwójną ścianą nośną ( 24 cm + dylatacja styropianu + 24 cm ). W standardzie developerskim : - Instalacje elektryczne - okablowanie, - Instalacja multimedialna i IT, - Instalacje sanitarne wodno- kanalizacyjna, - Instalacja centralnego ogrzewania, - Ogrzewanie podłogowe parter oraz piętro, - Piec gazowy z zasobnikiem wody 120l, - Brama garażowa sterowana na pilota w kolorze antracytu, - Elewacje - ocieplenie 20cm styropian szary, - Zagospodarowanie terenu - podjazd i wejście do budynku wybrukowane kostką betonową, - Ściany i sufity: tynk cementowo-wapienny - Posadzki betonowe - Schody wylewane, żelbetowe - Stolarka okienna PCV trzy szybowa z okleiną w kolorze zewnątrz antracytowy, wewnątrz białe. - Drzwi zewnętrzne antywłamaniowe w kolorze antracytowym. - Ocieplenie dachu wełną 20cm. - Ogrodzenie siatką panelową Dom został zaprojektowany tak, aby dać poczucie przestrzeni i wygody dla przyszłych właścicieli. W wiatrołapie jest miejsce z małą garderobę ok 3m2. Salon to otwarta przestrzeń do której wpada dużo naturalnego światła przez zamontowane okno tarasowe typu HST przez które wyjdziemy na ogród oraz duże okna w bocznej części salonu. Salon posiada przyłącze do kominka co będzie niewątpliwym atutem w zimowe dni. Aneks kuchenny w kwadracie jest niezwykle ustawny i daje możliwość w pełni wykorzystania tej przestrzeni. Na piętro prowadzą schody żelbetowe na którym znajdziemy główną sypialnie z łazienką oraz balkonem, dwie osobne sypialnie każda posiadająca balkon, łazienka z toaletą oraz pralnie. Lokalizacja: ok 20 min do centrum Szczecina, 3 min pieszo do przystanku autobusowego, niedaleko szkoły, przedszkole, restauracje, poczta, Urząd Gminy, dyskonty, do przejścia granicznego w Lubieszynie ok 5 min. Wszystko czego potrzebujemy znajduje się w zasięgu ręki. Kupujący zwolniony z opłaty PCC 2%. Cena do negocjacji! Zapraszam do umówienia się na prezentacje i zapoznania się z tą ofertą. OFERTA NA WYŁĄCZNOŚĆ !
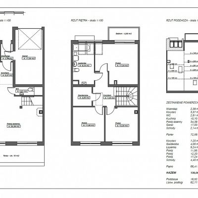
Szczecin, Gumieńce
1 299 000 zł | 139 m2 | pokoi: 4nr oferty: 421438
Nowa inwestycja na Gumieńcach, w atrakcyjnej lokalizacji. W otoczeniu niska zabudowa jednorodzinna. Do sprzedaży dom w zabudowie szeregowej - środkowy segment. Nieruchomość o powierzchni 139 m2 i dodatkowo poddasze, posadowiona na działce o pow.178 m2: PARTER o powierzchni 72,59 m2 z garażem w bryle budynku 17 m2. Wysokość pomieszczeń 290 cm. Na tym poziomie znajdują się: wiatrołap, korytarz, wc, kuchnia i salon z wyjściem do ogrodu. PIĘTRO o powierzchni 66,41 m2. Wysokość pomieszczeń 270 cm. Na tą powierzchnię składają się : korytarz, garderoba, łazienka, trzy pokoje. Nad całością znajduje się poddasze o pow. użytkowej 16,52 m2 (po podłodze 62,77 m2) Szczegółowy rozkład pomieszczeń i powierzchnie znajdziecie Państwo na załączonym rzucie. Budynek z cegły ceramicznej typu Porotherm, docieplony styropianem 15 cm. Zdwojone ściany między sąsiadami. Dach dwuspadowy, dachówka cementowa. Okna PCV-3 szybowe, w salonie drzwi rozsuwane z zewnętrznymi roletami sterowanymi elektrycznie. Została wykonana instalacja alarmowa z centralą i czujnikami, instalacja monitoringu, internetowa i TV oraz centralnego odkurzania. Ogrzewanie podłogowe, piec dwufuncyjny. Teren zagospodarowany, ogrodzony. Przed garażem podjazd z miejscem parkingowym. Strona kupująca nie płaci podatku PCC. Po więcej szczegółów zapraszam do bezpośredniego kontaktu i na prezentację.
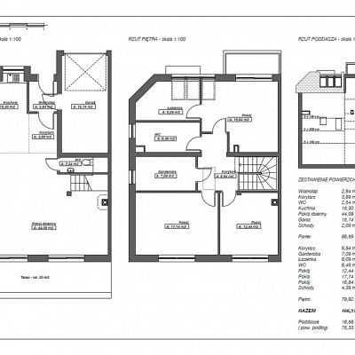
1 699 000 zł | 167 m2 | pokoi: 4nr oferty: 421439
Nowa inwestycja na Gumieńcach, w atrakcyjnej lokalizacji. W otoczeniu niska zabudowa jednorodzinna. Do sprzedaży dom w zabudowie szeregowej - skrajny segment. Nieruchomość o powierzchni 166,51 m2 i dodatkowo poddasze, posadowiona na działce o pow.402 m2: PARTER o powierzchni 86,59 m2 z garażem w bryle budynku 15.74 m2. Wysokość pomieszczeń 290 cm. Na tym poziomie znajdują się: wiatrołap, korytarz, wc, kuchnia i salon z wyjściem do ogrodu. PIĘTRO o powierzchni 79,92 m2. Wysokość pomieszczeń 270 cm. Na tą powierzchnię składają się : korytarz, garderoba, łazienka, wc i trzy pokoje. Nad całością znajduje się poddasze o pow. użytkowej 18,58 m2 (po podłodze 75,33 m2) Szczegółowy rozkład pomieszczeń i powierzchnie znajdziecie Państwo na załączonym rzucie. Budynek z cegły ceramicznej typu Porotherm, docieplony styropianem 15 cm. Zdwojone ściany między sąsiadami. Dach dwuspadowy, dachówka cementowa. Okna aluminiowe, w salonie drzwi rozsuwane z żaluzjami zewnętrznymi sterowanymi elektrycznie. Została wykonana instalacja alarmowa z centralą i czujnikami, instalacja monitoringu, internetowa i TV oraz centralnego odkurzania. Ogrzewanie podłogowe, piec dwufuncyjny ze zbiornikiem wody. Teren zagospodarowany, ogrodzony. Przed garażem podjazd z miejscem parkingowym. Strona kupująca nie płaci podatku PCC. Po więcej szczegółów zapraszam do bezpośredniego kontaktu i na prezentację.
1 699 000 zł | 481 m2 | pokoi: 11nr oferty: 425243
Nie masz pomysłu na biznes a chciałbyś zacząć? Nic prostszego. Oferujemy obiekt mieszkalno - pensjonatowy w cichym i spokojnym miejscu w niewielkiej odległości od Stargardu. OFERTA BEZPOŚREDNIA. KUPUJĄCY NIE PŁACI PROWIZJI. PROWIZJĘ KUPUJĄCEGO POKRYWA SPRZEDAJĄCY Budynek usytuowany na działce powierzchni 1983 m2 powstał w 2002 roku a następnie w 2010 roku został rozbudowany o część hotelową. Całość budynku to 386,9 m2 powierzchni użytkowej posiadająca dwa niezależne wejścia do części mieszkalnej i pensjonatowej połączonych ze sobą łącznikiem w formie oranżerii. Część prywatna (mieszkalna ) składa się z: - salonu z jadalnią, kuchni, - 4 pokoi (w chwili obecnej również udostępnione jako pokoje hotelowe), - 2 łazienek, - kotłowni z pralnią, - poddasza użytkowego. Pensjonat to: - 5 pokoi -apartament. Wszystkie pokoje wyposażone w wysokim standardzie hotelowym, każdy pokój z łazienką. Dla gości hotelowych możliwość wykorzystania w pełni wyposażonego zaplecza kuchennego z jadalnią. Całość nieruchomości to budynek i duży, zagospodarowany i urządzony ogród z wyposażoną wiatą grillową, wolnostojącym pomieszczeniem gospodarczym oraz z okazami rzadko spotykanej roślinności. Działka posiada pełne uzbrojenie w media (prąd, woda, gaz, kanalizacja) Budynek wybudowany metodą tradycyjną: - materiał budowlany : ściany zewnętrzne bloczki gazobetonowe, ściany wewnętrzne pustaki ceramiczne "Porotherm", - dach płatwiowo - kleszczowy dwuspadowy, drewniany, wykończony dachówką ceramiczną - stolarka okienna i drzwiowa: okna drewniane i PCV, drzwi wejściowe antywłamaniowe, - pokoje, kuchnie i łazienki wykończone glazurą, terakota oraz panelami. Koszty utrzymania (w przeważającej części uzależnione od gości hotelowych) to: gaz - ok. 1200 zł średniomiesięcznie na przestrzeni roku, prąd - ok. 600zł/ miesiąc, woda - ok 400 zł/miesiąc Polecam ze względu na lokalizację w zacisznym miejscu, z dala od miejskiego hałasu a jednocześnie zapewniającym łatwe dotarcie do Stargardu własnym autem (ok. 15 min do centrum Stargardu) lub komunikacją miejską Ponadto w pobliżu znajdują się: szkoła, sklepy, apteka, restauracja, przychodnia. Nieruchomość daje bardzo duże możliwości jej wykorzystania: można dalej prowadzić ją w obecnej formie lub utworzyć np. rodzinny dom dziecka, dzienny lub całodobowy dom opieki, lub wykorzystać np. na obiekt z zakresu medycyny estetycznej, klinikę weterynaryjną itd. Właściciel dopuszcza możliwość najmu dla agencji pracy zatrudniającej pracowników dla np. innych firm. Możliwość zakwaterowania ok. 30-35 osób. Miesięczny koszt najmu to 15 000 zł/ miesiąc plus opłata za wszystkie media. Chcesz osobiście zweryfikować nieruchomość - zadzwoń umów się na prezentację! Chcesz poznać więcej szczegółów - zadzwoń i zapytaj! Udzielę wszystkich niezbędnych informacji.
Kontakt
Informacje
Na sprzedaż
Na wynajem
Aktualnie w notesie nie znajduje się żadna oferta.