(Symbol 428158) LOKAL na SPRZEDAŻSzczecin, Śródmieście-Centrum
Centrum - lokal na sprzedaż
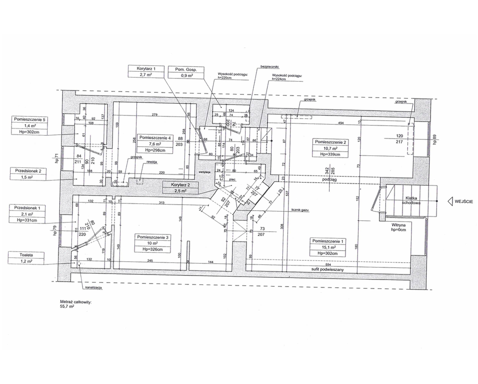
Oferta na wyłączność! Ofertą sprzedaży jest lokal położony przy jednej z głównych ulic miasta z bardzo dużym ruchem pieszym i dostępem do infrastruktury. Powierzchnia tej nieruchomości wynosi 56,8m2 i posiada ona wejście z ulicy z witryną sprzedażową.

Lokal oznaczony jest jako mieszkalny, natomiast jest on w trakcie zmiany sposobu użytkowania, a jego rozkład przedstawia załączony rzut do oferty. Nieruchomość zaadaptowana pod lokal usługowy, biurowy, handlowy, lub biuro czy gabinety. Standard podstawowy, wymaga adaptacji pod konkretne wymagania czy oczekiwania.

Ogrzewanie i ciepła woda z pieca gazowego dwufunkcyjnego. Opłaty do wspólnoty wynoszą około 950zł-1000z. Lokal posiada dużą salę sprzedażową z frontu, dwa dodatkowe pomieszczenia magazynowo-socjalne, dwie toalety oraz przedsionek (łącznik). Dodatkowo lokal posiada instalację alarmu oraz monitoringu.

Polecam i zapraszam na prezentację.

Treść niniejszego ogłoszenia nie stanowi oferty handlowej w rozumieniu Kodeksu Cywilnego. Treść ma charakter informacyjny i zalecamy ich osobistą weryfikację. Kontaktując się z biurem Klient wyraża zgodę na przetwarzanie danych osobowych zgodnie z przepisami ustawy z dnia 29 sierpnia 1997 roku o ochronie danych osobowych / Dz.U.Nr. 133 poz. 883/. Klientowi przysługuje prawo do wglądu do swoich danych osobowych i ich aktualizacji.

Symbol
428158
Symbol SWO
428158
Rodzaj nieruchomości
LOKAL
Rodzaj transakcji
SPRZEDAŻ
Status
oferta aktualna
Rodzaj rynku
WTÓRNY
Cena cena w innych walutach
410 000 PLN
Cena za m2
7 218 PLN
Kraj
POLSKA
Województwo
ZACHODNIOPOMORSKIE
Miejscowość
Szczecin
Dzielnica - osiedle
Śródmieście-Centrum
Powierzchnia całkowita
56,80 m²
Rok budowy
1918
Materiał ścian
CEGŁA
Parter
Ilość pięter [wliczając parter]
4
Podpiwniczenie /piwnica
PIWNICA
Podłączony gaz
Ochrona
Monitoring
Nr Licencji
20713
Stan budynku
DOBRY

Doradca odpowiedzialny za ofertę

Anna Wysokińska

Zapytaj o ofertę