(Symbol 437550) MIESZKANIE na SPRZEDAŻSzczecin, Centrum
3 pokojowe mieszkanie z balkonem centrum miejskie
Mam przyjemność zaprezentować na sprzedaż duże 3 pokojowe, w pełni rozkładowe mieszkanie w kamienicy w Centrum o powierzchni użytkowej 93,50 m2 z ogrzewaniem z sieci miejskiej.

LOKALIZACJA
Nieruchomość znajduje się w Szczecinie w ścisłym Centrum miasta, na jednej z ładniejszych ulic Szczecina – Jagiellońska, jednokierunkowy odcinek między Wojska Polskiego a Monte Cassino. Okolica świetnie skomunikowana z całym miastem, liczne linie tramwajowe i autobusowe. W pobliżu znajdują się liczne sklepy, centrum Handlowe, inne punkty usługowe, a także szkoły i Wyższe Uczelnie.

O NIERUCHOMOŚCI
Nieruchomość położona jest na II piętrze budynku, IV piętrowego kamienicy. Brama i klatka schodowa była remontowa. Okna mieszkania wychodzą na obie strony budynku. Mieszkanie przestronne, rozkładowe z głównymi pokojami z oknami na południe. Do mieszkania przynależy duża piwnica. W łazienka zarówno wanna jak i prysznic. Ogrzewanie miejskie, woda miejska - SEC. Mieszkanie ciepłe, środkowe. W pokojach deska barlinecka. Aktualny czynsz z zaliczkami na wodę zimną, ciepłą, ogrzewanie, śmieci, kanalizację oraz fundusz remontowy 1000 zł przy 2 osobach. Dodatkowo prąd, gaz. Parking dla mieszkańców w bramie.


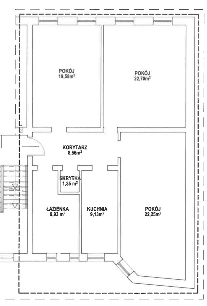
UKŁAD I WYPOSAŻENIE
Mieszkanie o powierzchni 93,50 m2 składa się z:
- pokój dzienny
- pokój dzienny z balkonem
- sypialnia z garderobą
- kuchnia
- łazienka z wc
- korytarz  + skrytka

ATUTY
- lokalizacja – Jagiellońska na przeciwko apartamenty Gryf
- dobrze skomunikowane, liczne linie tramwajowe i autobusowe
- duże zagospodarowane podwórko
- zachowana drewniana stolarka oraz parkiet
- 2 szybowe okna PVC
- balkon

Zapraszam na prezentację.


Treść niniejszego ogłoszenia nie stanowi oferty handlowej w rozumieniu Kodeksu Cywilnego. Treść ma charakter informacyjny i zalecamy ich osobistą weryfikację. Kontaktując się z biurem Klient wyraża zgodę na przetwarzanie danych osobowych zgodnie z przepisami ustawy z dnia 29 sierpnia 1997 roku o ochronie danych osobowych / Dz.U.Nr. 133 poz. 883/. Klientowi przysługuje prawo do wglądu do swoich danych osobowych i ich aktualizacji.

Symbol
437550
Symbol SWO
437550
Rodzaj nieruchomości
MIESZKANIE
Rodzaj transakcji
SPRZEDAŻ
Status
oferta aktualna
Rodzaj rynku
WTÓRNY
Cena cena w innych walutach
599 000 PLN
Stara cena
620 000 PLN
Cena za m2
6 406 PLN
Kraj
POLSKA
Województwo
ZACHODNIOPOMORSKIE
Miejscowość
Szczecin
Dzielnica - osiedle
Centrum
Powierzchnia całkowita
93,50 m²
Rodzaj budynku
KAMIENICA
Rok budowy
1900
Standard
DO DROBNEGO REMONTU
Materiał ścian
CEGŁA
Typ kuchni
ODDZIELNA
Powierzchnie kuchni
9 m²
Liczba łazienek
1
Powierzchnie łazienek
10 m²
Liczba pokoi
3
Powierzchnie pokoi
22 ,22, 20 m²
Piętro
2
Ilość pięter [wliczając parter]
4
Wysokość kondygnacji
280,00 cm
Źródło c.w.
SIEĆ MIEJSKA,
Ogrzewanie
C.O. Z SIECI MIEJSKIEJ,
Podłączony gaz
Lodówka
Piekarnik
Zmywarka
Domofon
Rodzaj podłogi
PARKIET,
Ilość balkonów
1
Powierzchnie balkonów
2 m²
Najbliższy park
w pobliżu
Najbliższy żłobek
w pobliżu
Najbliższe przedszkole
w pobliżu
Najbliższa Szkoła Podstawowa
w pobliżu
Komunikacja miejska
w pobliżu
Najbliższa apteka
w pobliżu
Najbliższy lokal gastronomiczny
w pobliżu
Nr Licencji
1830
Najbliższy klub fitness
w pobliżu
Najbliższy szpital
w pobliżu
Najbliższy bank
w pobliżu
Kuchenka mikrofalowa

Doradca odpowiedzialny za ofertę

Anna Wysokińska

Zapytaj o ofertę